
富春和園新中式設計 | 融團圓之意,取寧靜之思

本案是一套230平的新中式風格設計,業主為廣東一家私企老板,全家人平時都在外打拼,只有過年才會回鄉團聚,因此他們希望這套房子擁有足夠多的房間和足夠大的客餐廳,供一家人在新春接待各方親戚朋友,同時在設計上要求沉穩、大氣并帶點時尚感。
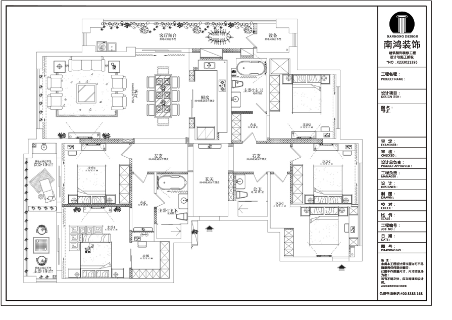
戶 型 圖



玄關門廳右側打造了通頂式玄關柜,中間局部留空,兼具展示和收納之用。廊道盡頭布置中國風端景,充分闡釋了東方文化之美。

▲玄關側景


在客廳的主色調、格局、細節等方面,設計師于中式與現代元素的碰撞中,恰當取舍,微微幾筆便勾勒出古樸的中式韻味。

沙發處墻繪山水背景,意境悠遠,氣質不凡。中式實木沙發搭配舒適坐墊,與茶幾構成圍合式布局,一個雅致古典的待客氛圍由此展開。

落地窗引入明亮光線,內外通透。水墨畫般的電視背景墻傳遞出“只緣身在此山中”的哲思,令人神往。

客廳望向餐廳視角。中式風格的古色古香與現代風格的簡單素雅銜接自然,恰當得宜。


▲客廳細節圖


古樸的實木餐椅圍繞著同款圓桌而設,圓桌能更大限度地增加家人之間的溝通交流,對老人和小朋友也十分友好。客餐一體的布局拉大空間感,顯得異常大氣。

▲餐廳細節圖



主臥背景選用亞麻色的印花墻紙,亞麻色比白色溫暖,比黃色低調,搭配任何顏色都不會突兀。床品點綴深藍,鮮活視覺。



業主大兒子的房間,應居住者需求,淡化了中式元素而更偏向現代風格。雙層折邊吊頂簡潔大氣,床頭背景墻選用藍色硬包結合木飾面,床頭柜上方設計了金屬色吊燈點綴空間。


房間陳設簡單,兩側木腿床頭柜顯得小巧精致,簡易吊頂采用黑色走邊,展現出干凈整潔的空間氣質。
| 地址:富春和園錦和苑
| 面積:230㎡
| 風格:新中式
| 造價:86萬(硬裝)+35萬(軟裝)+12萬(空調地暖凈水)
| 設計施工:浙江南鴻裝飾
上一篇:值得你收藏的色彩搭配技巧!
免費
免費申請戶型規劃
專屬設計師免費1對1全程服務
已經有3790人申請
24小時免費咨詢電話
400-8800-618
你家預算
108080元